Doppeltes Wohnglück: Modernes Zweifamilienhaus mit vielfältigen Nutzungsoptionen
Objektart
Adresse
Objektdaten
Informationen
Ausstattung
Details
Dieses außergewöhnliche Architektenhaus aus dem Jahr 1993 überzeugt durch seine großzügige Raumaufteilung, hochwertige Bauweise in Kalksandstein sowie vielseitige Nutzungsmöglichkeiten. Das moderne Zweifamilienhaus präsentiert sich in einem äußerst gepflegten Zustand und eignet sich sowohl für die große Familie als auch für Mehrgenerationenkonzepte oder die Kombination von Wohnen und Arbeiten unter einem Dach.
Die Gesamtwohnfläche verteilt sich auf zwei vollwertige Wohneinheiten. Im Erdgeschoss befindet sich eine großzügige 3-Zimmer-Wohnung mit rd. 120 m² Wohnfläche. Das lichtdurchflutete Wohnzimmer bietet direkten Zugang zu einer rd. 45 m² großen Terrasse, die nahtlos in den gepflegten Garten übergeht. Dieser bildet eine grüne Oase mit hohem Freizeitwert: Ob entspanntes Verweilen, gesellige Grillabende mit Familie und Freunden oder einfach ruhige Stunden im Freien - hier eröffnen sich vielfältige Möglichkeiten, den Alltag hinter sich zu lassen. Die vorhandene Teeküche verfügt über einen Waschmaschinenanschluss, während das Badezimmer bereits für eine Wanneninstallation vorbereitet ist. Ergänzend befindet sich im Eingangsbereich ein Technikraum mit weiterem Waschmaschinenanschluss.
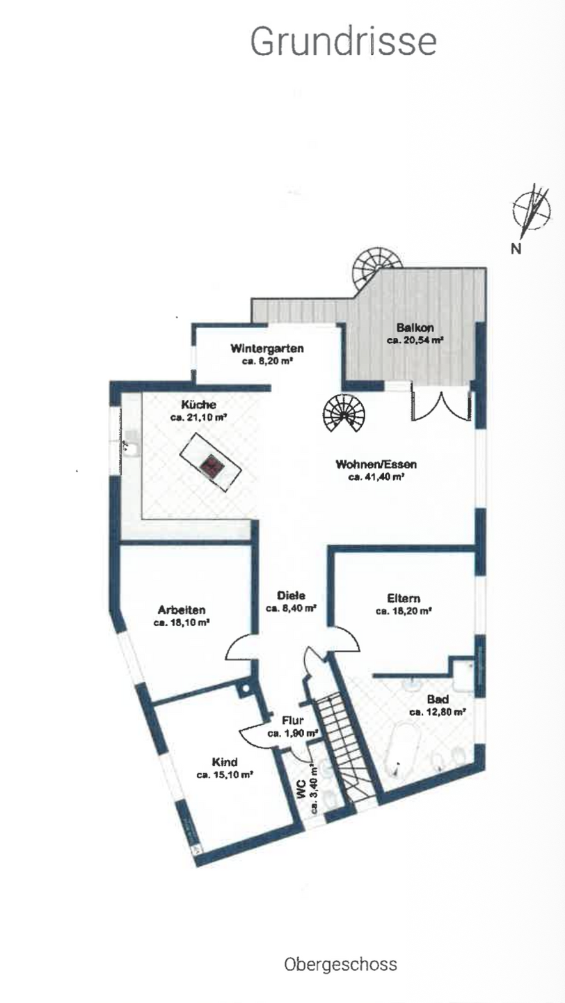
Das Obergeschoss beherbergt eine beeindruckende 4-Zimmer-Wohnung mit rd. 140 m² Wohnfläche, die durch ihre moderne Ausstattung und offene Gestaltung besticht. Die erst im Jahr 2021 hochwertig modernisierte Küche im amerikanischen Stil bildet mit ihrer großzügigen Kochinsel (ca. 1 x 2 m) das Herzstück des Wohnbereichs. Ausgestattet mit Induktionskochfeld (90 cm), integriertem Backofen sowie hochwertigen Elektrogeräten - unter anderem von Bosch, Haier und einem Liebherr-Weinkühlschrank für bis zu 59 Flaschen - erfüllt sie höchste Ansprüche.
Das ebenfalls im Jahr 2021 modernisierte Badezimmer überzeugt als stilvolle Wohlfühloase mit freistehender Badewanne und einer eleganten Spanndecke inklusive dimmbarer LED-Beleuchtung. Ein besonderes Highlight ist die Galerieebene mit rd. 50 m², die über eine imposante Spindeltreppe (Ø 190 cm) vom Wohnzimmer aus erreichbar ist. Hier eröffnen sich vielfältige Nutzungsmöglichkeiten - ob als Fitnessbereich, Homeoffice, Lounge oder Gästebereich mit zusätzlichem Alkoven und Abstellraum.
Vom Wohnzimmer aus gelangen Sie zudem auf einen rd. 20 m² großen Balkon, der über eine weitere Spindeltreppe direkten Zugang zur darunterliegenden Terrasse und in den weitläufigen, pflegeleichten Garten bietet. Dieser überzeugt nicht nur durch seine Größe, sondern auch durch seine durchdachte Gestaltung: Regelmäßig gepflegte Bepflanzung, ein Mähroboter für komfortable Instandhaltung sowie ein großes Gartenschachbrett schaffen eine besondere Atmosphäre. Der Außenbereich lädt dazu ein, den Tag entspannt ausklingen zu lassen, die Sonne zu genießen oder gemeinsam Zeit im Grünen zu verbringen - ein echtes Highlight für alle, die Wert auf Lebensqualität im Freien legen.
Das Haus ist nicht unterkellert, was aufgrund der Lage im Feuchtgebiet bewusst so konzipiert wurde. Die Beheizung erfolgt über eine Gasheizung, die regelmäßig durch eine Fachfirma gewartet wird und sich in einwandfreiem Zustand befindet. Im gesamten Haus sorgt eine Fußbodenheizung für angenehme Wärme, ergänzt durch zusätzliche Heizkörper in den Bädern und im Eingangsbereich.
Ein weiterer Pluspunkt ist die vorhandene Photovoltaikanlage mit 8 kWp, deren Restlaufzeit noch etwa fünf Jahre beträgt. Eine Abgeschlossenheitsbescheinigung liegt vor, wodurch flexible Nutzungskonzepte problemlos realisierbar sind - sei es zur Eigennutzung, Teilvermietung oder als Kapitalanlage. Bei Vermietung einer Einheit lassen sich monatliche Einnahmen von ca. 1.100,00 EUR erzielen.
Auch im Außenbereich überzeugt die Immobilie auf ganzer Linie: Eine Doppelgarage mit hochwertigem Hartgummiboden - ideal auch für die Unterbringung eines Oldtimers - sowie vier Fahrradhalterungen bieten praktischen Komfort. Ergänzt wird das Angebot durch ein großzügiges Carport für bis zu drei Fahrzeuge sowie zusätzliche Stellplätze vor der Garage, sodass insgesamt bis zu sieben PKW-Stellplätze zur Verfügung stehen.
Insgesamt handelt es sich um eine hochwertige, vielseitige Immobilie mit besonderem Wohnambiente, die nicht nur durch ihre Ausstattung und ihre vielen liebevollen Details überzeugt, sondern auch durch ihren außergewöhnlich hohen Freizeit- und Erholungswert im eigenen Garten.
Die Highlights auf einen Blick:
- Zweifamilienhaus mit insgesamt 260 qm Wohnfläche und rd. 50 qm Galerie im OG
- Großzügiges Grundstück von 920 qm in ruhiger Feldrandlage
- Doppelgarage, Carport für bis zu drei PKW´s zzgl. 3-Außenstellplätzen
- 2-Terrassen und ein Balkon mit direkten Zugang zum Garten
- Kein Sanierungsstau
- Photovoltaikanlage mit 8 kWp (beide Wechselrichter erneuert)
- Küche und Badezimmer im OG zuletzt 2021 umfangreich Saniert
Erbes-Büdesheim ist eine charmante Ortsgemeinde im Landkreis Alzey-Worms in Rheinland-Pfalz und zeichnet sich durch ihre ruhige, naturnahe Lage mit gleichzeitig guter Anbindung an die umliegenden Städte aus. Eingebettet in die reizvolle Hügellandschaft Rheinhessens bietet der Ort eine hohe Lebensqualität für Familien, Berufspendler und Ruhesuchende gleichermaßen.
Die Umgebung ist geprägt von Weinbergen, Feldern und weitläufigen Grünflächen, die zu Spaziergängen, Fahrradtouren und Erholung im Freien einladen. Trotz der idyllischen Lage sind die infrastrukturellen Anbindungen als gut zu bezeichnen: Die Städte Alzey, Bad Kreuznach und Mainz sind mit dem Auto in kurzer Zeit erreichbar und bieten ein breites Angebot an Einkaufsmöglichkeiten, kulturellen Einrichtungen sowie medizinischer Versorgung.
Vor Ort sowie in den benachbarten Gemeinden stehen Kindergärten, Schulen und Einrichtungen des täglichen Bedarfs zur Verfügung. Zudem sorgen ein aktives Vereinsleben und zahlreiche regionale Veranstaltungen für eine lebendige Dorfgemeinschaft und ein angenehmes soziales Umfeld.
Insgesamt verbindet Erbes-Büdesheim ländliche Ruhe mit einer soliden Infrastruktur und einer guten Erreichbarkeit der wirtschaftlichen Zentren der Region - ein attraktiver Wohnstandort mit hohem Erholungswert.
GELDWÄSCHE: Als Immobilienmaklerunternehmen ist Rothbaum Invest nach § 2 Abs. 1 Nr. 14 und § 11 Abs. 1, 2 Geldwäschegesetz (GwG) dazu verpflichtet, bei der Begründung einer Geschäftsbeziehung die Identität des Vertragspartners festzustellen und zu überprüfen, bzw. sobald ein ernsthaftes Interesse an der Durchführung des Immobilienkaufvertrages besteht. Hierzu ist es erforderlich, dass wir nach § 11 Abs. 4 GwG die relevanten Daten Ihres Personalausweises festhalten (wenn Sie als natürliche Person handeln) - beispielsweise mittels einer Kopie. Bei einer juristischen Person benötigen wir eine Kopie des Handelsregisterauszugs, aus welchem der wirtschaftlich Berechtigte hervorgeht. Das Geldwäschegesetz sieht vor, dass der Makler die Kopien bzw. Unterlagen fünf Jahre aufbewahren muss. Als unser Vertragspartner haben Sie auch eine Mitwirkungspflicht nach § 11 Abs. 6 GwG.
HAFTUNG: Wir weisen darauf hin, dass die von uns weitergegebenen Objektinformationen, Unterlagen, Pläne etc. vom Verkäufer bzw. Vermieter stammen. Eine Haftung für die Richtigkeit oder Vollständigkeit der Angaben übernehmen wir daher nicht. Es obliegt daher unseren Kunden, die darin enthaltenen Objektinformationen und Angaben auf ihre Richtigkeit hin zu überprüfen. Alle Immobilienangebote sind freibleibend und vorbehaltlich Irrtümer, Zwischenverkauf- und Vermietung oder sonstiger Zwischenverwertung.
UNSER SERVICE FÜR SIE ALS EIGENTÜMER:
Planen Sie den Verkauf oder die Vermietung Ihrer Immobilie, so ist es für Sie wichtig, deren Marktwert zu kennen. Lassen Sie kostenfrei und unverbindlich den aktuellen Wert Ihrer Immobilie professionell durch einen unserer Immobilienspezialisten einschätzen. Unser Netzwerk ermöglicht es uns, Verkäufer bzw. Vermieter und Interessenten bestmöglich zusammenzuführen.
Ansprechpartner
Mobil: 0176 23440188
kontakt@rothbauminvest.de
Energieausweis (Verbrauchsausweis)
144,02 kWh / (m²*a) Energieverbrauchskennwert
144,02 kWh / (m²*a) Energieverbrauchskennwert
144,02 kWh / (m²*a) Energieverbrauchskennwert
144,02 kWh / (m²*a) Energieverbrauchskennwert
144,02 kWh / (m²*a) Energieverbrauchskennwert Weitere Informationen
| Wesentlicher Energieträger | Gas |
| Energieausweis Ausstelldatum | 2023-05-05 |
| Energieausweis gültig bis | 04.05.2033 |
| Energieausweis Jahrgang | ab dem 1.5.2014 |
| Energieausweis Werteklasse | E |
| Energieausweis Baujahr | 1993 |
| Energieausweis Gebäudeart | Wohngebäude |
| Befeuerung | Gas |
Ich bin damit einverstanden, dass mir Karten von Google angezeigt werden. Es gelten die Datenschutzbedingungen von Google (https://policies.google.com/privacy).
Ich bin einverstanden